2003 yılında yapılan proje yarışmasında 1. seçilen, 2008 de detaylı planlaması biten, 2010 yılında inşaatına başlanan ve 2014 de inşaatı tamamlanan Alborg Opera ve Konser Salonu.
Proje Avusturya şirketi Coop Himmel B(L)au Şirketi tarafından yapılmıştır. Toplam inşaat alanı 20.257 m2’dir.
Planlama:
COOP HIMMELB(L)AU Wolf D. Prix / W. Dreibholz & Partner ZT GmbH
Design Principal/ CEO: Wolf D. Prix
Senior Project Partner: Michael Volk
Project Architect: Marcelo Bernardi, Pete Rose
Design Architect: Luzie Giencke
Design Architect – Interior: Eva Wolf
CAD Coordinator: Ronny Böser, Benjamin Schmidt
Project Team: Markus Baumann, Wendy Fok, Robin Heather, Ivana Jug, Ariane Marx, Anja Sorger, Bo Stjerne Thomsen, Anna Wasserthal, Philip Wilck,Blaine Lepp, Talya Kozminsky, Hannes Walzl, Morten Grau Jensen, Stephanie Neufeld, Tyler Bornstein, Laura Githa, Julia Gärtner, Jenny Draxlbauer
Danışmanlık:
Acoustics, Audio-Visual & Theatre Design and Planning Consultant: Arup, London, UK
Local Architects: Friis & Moltke, Aalborg, Denmark
Landscape Architect: Jeppe Aagaard Andersen, Helsingør, Denmark
Structural Engineering: Rambøll, Aalborg, Denmark;
B+G Ingenieure, Bollinger und Grohmann GmbH, Frankfurt, Germany
Mechanical, Electrical and Fire Engineering: Nirás, Aalborg, Denmark
Cost consultant: Davis Langdon LLP, London, England
Lighting Design Consultant: Har Hollands, Eindhoven, The Netherlands
Interior Design Consultant: Eichinger Offices, Vienna, Austria
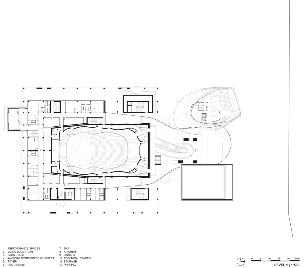
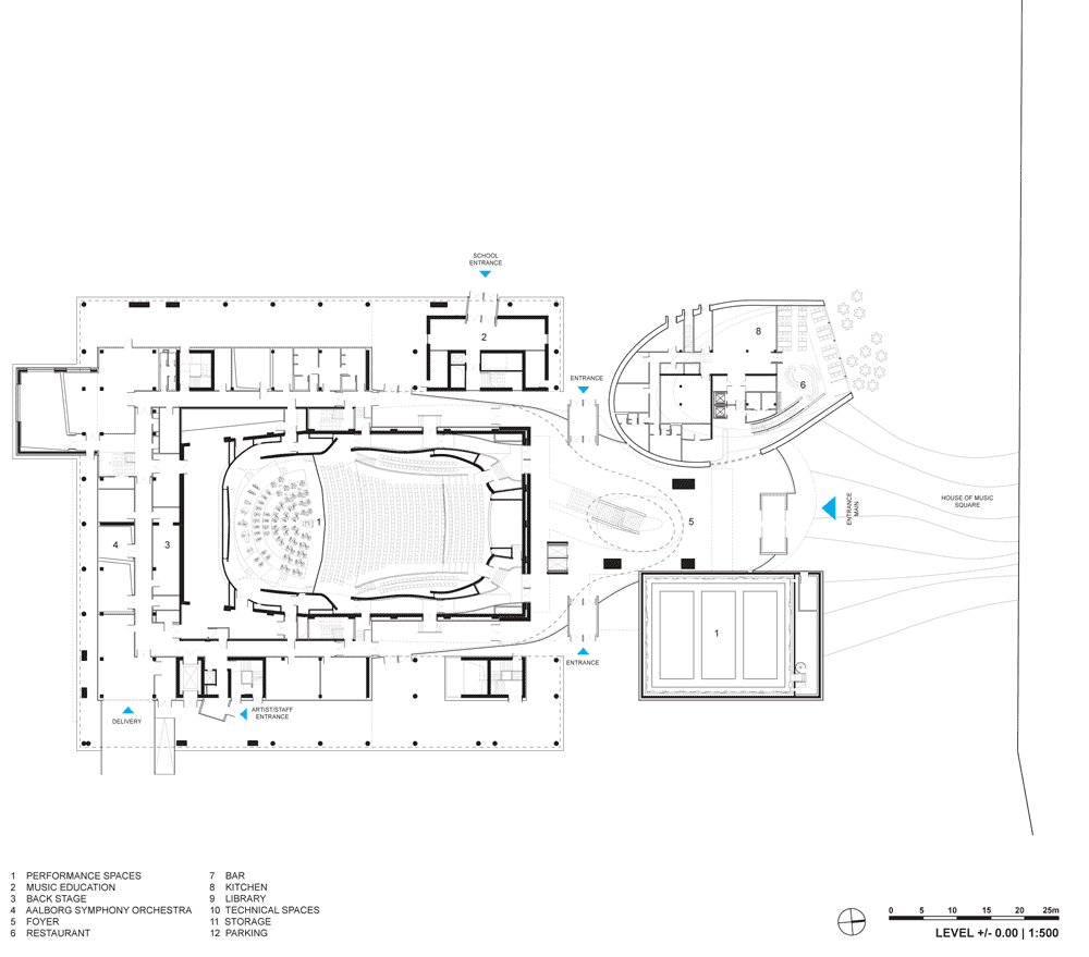
Proje GörsellERİ
Kaynak: http://www.coop-himmelblau.at/architecture/projects/house-of-music-ii
Sanal Şantiye sitesinden daha fazla şey keşfedin
Subscribe to get the latest posts sent to your email.










