İçindekiler
AKS Nedir?
İnşaat sektöründe çokça duyduğumuz, özellikle proje çizerken kolon gibi yapı elemanlarının yerleştirilmesi, düzenlenmesinde yardımcı çizgiler dediğimiz aks projelerde referans noktalar olarak görev yapar. İnşaat terimi olarak kullanılan aks bir öğenin ortasından diğer öğenin ortasına kadar olan mesafe olarak tanımlanır. Akslar projedeki her kolonun yerini belirtmek, konumlandırmak, imalat aşamasında yanlışa sebebiyet vermemek için kullanılır. Akslar çizilirken uçları daire içine alınır ve dikey çizgiler alfabetik, yatak çizgiler rakamla gösterilir.
Aks Kullanım Nedeni Nedir?
Mimariyi projeyi tüm detaylarıyla temiz ve titiz bir şekilde ilerletmek için aks hesaplamaları önemlidir. Proje aşamasında belirlenen aks yerleri bir doğru üzerinde yer alan kolonların aynı hizzada kenarları çakışacak şekilde çizilir. Bu çizime göre aksın her iki tarafından ne kadar uzaklıkta kolon koyulacağı özel hesaplamalarla belirlenir. Aksların ölçülendirilmesi ilk olarak kolonlarda yapılır ve diğer elemanların aksların ölçüleri de kolonların eksiksiz ve doğru yapılmasıyla ölçülendirilir. Kolonların x-x ve y-y doğrultularında aynı düzlemde olmaları uygulama açısından son derece önemlidir. Hatalı aks ölçüleri olan taşıyıcı elemanların yapım esnasında birçok uygunsuzluğa sebep olacağı muhtemeldir.
Aks Açıklıkları Nasıl Belirlenir?
Aks açıklıkları belirlenirken belli bir kural veya belirli bir ölçü yoktur. Mimari projelerde akslar kolon yerleri için çizilir. Yerleştirilen kolonları kirişle geçmek mümkündür. Bu sebeple aks açıklıkları ne kadar fazla olursa kiriş uzunlukları da o kadar artacaktır. Bu da kirişlerde sehime neden olabilir. Genelde 3-4 metre aks aralıkları uygundur. Fakat uygun statik tasarım ve hesaplar yapılarak aks aralıkları 3-4 metreden fazla da seçilebilir.
İnşaatta Aks Uygulamaları
Uygulama aşamasında projedeki aks ölçülerine göre ip çekilerek akslar belirlenir.
Yerleştirilen iplerle 2-2,5 cm mesafe kalacak şekilde kalaslar betona sabitlenir.
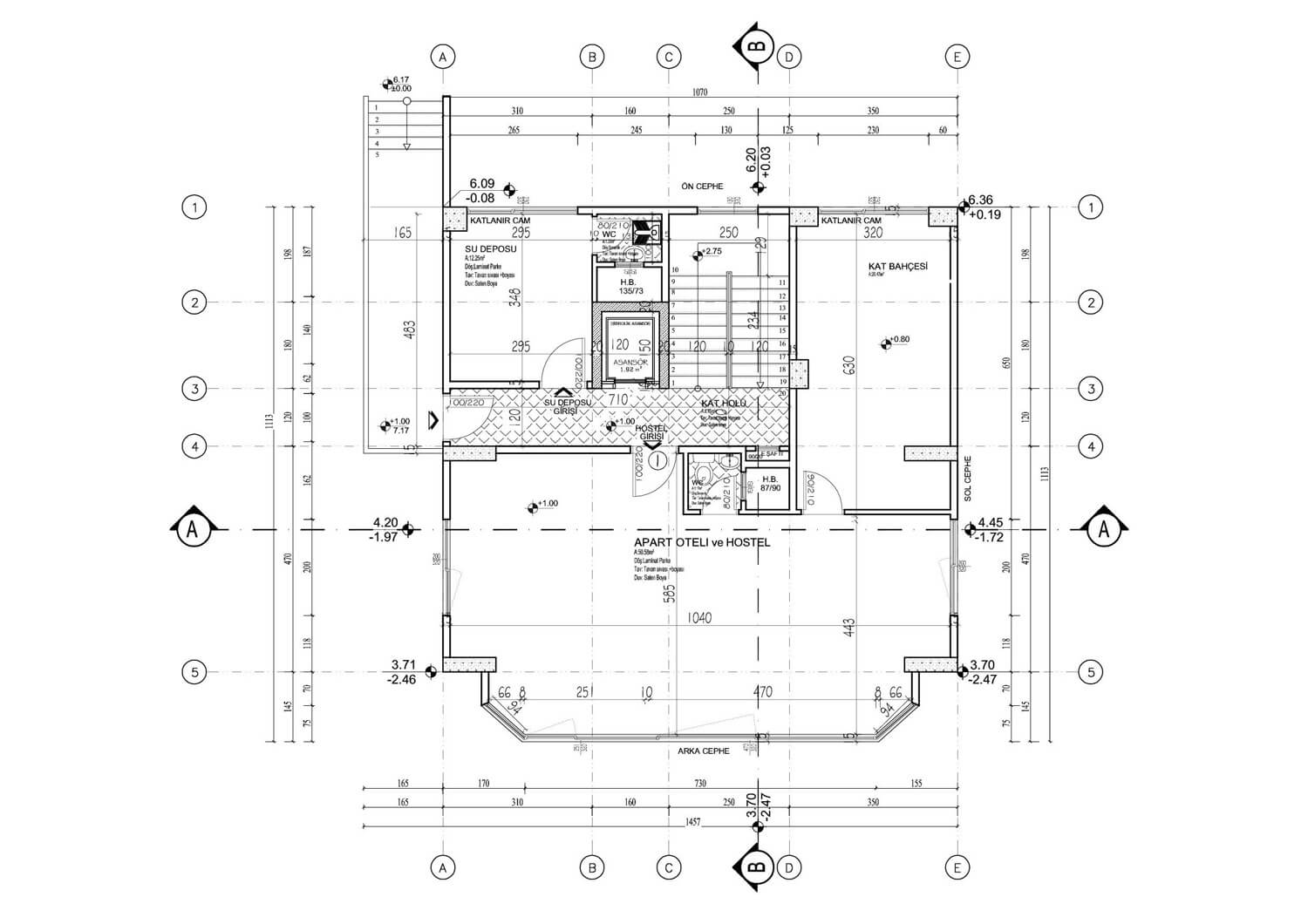
Örnek Aks Çizimleri
Sanal Şantiye sitesinden daha fazla şey keşfedin
Subscribe to get the latest posts sent to your email.





