Mimarlık eğitiminde estetik kaygı ön planda tutulur. Mimarlığın sanat dallarından birini teşkil etmesinden ötürü, ortaya göze hoş görünen bir ürünün çıkması beklenir. Başarılı bir mimarın ürettiği her ürün bir sanat eseri olarak kabul görür.
Bunun yanı sıra, çözümlenen mekânların işlevsel oluşu, amaçlanan programa hizmet etmesi de dikkat edilmesi gereken başka bir faktördür. Yapıyı kullanacak olan hedef kitleye yönelik ergonomik ve akılcı yaklaşımlar sergilenerek tam olarak arzulanan mekânsal boşluklar açığa çıkarılmaya çalışılır. Bunu başarmak mimarinin esaslarından olan bir diğer ilke olarak kabul edilir.
Üçüncü bir ilke ise elbette elde edilen formun dayanıklılığıdır. Ayakta durup duramayacağı, içindeki kullanıcıları dış etkenlerden ve yapının kendi yükünden korumadaki başarısı, mimari ürünü değerli kılan başka bir unsurdur.
Buraya kadar saydıklarımız milattan önce 30-20 yıllarında kitabından ve adından oldukça çok bahsettiren ve mimarinin temellerini atan ünlü mimar Vitruvius’un üç temel ilkesini içerir.
Görsel 1: Vitruvius, De Architectura
(Kaynak: https://tr.pinterest.com/pin/254734922649734137/?lp=true)
Görsel 2: Mimarlığın Üç Temel Prensibi
(Kaynak: http://www.irregularsquares.com/vitruvius/)
Peki aradan geçen o kadar süre zarfında mimariye bakış açımız ne kadar değişti? Şu anki verilen mimari eğitim, bizden bu üç ilke dışında neleri ön plana koymamızı istiyor? Ya da bırakın biz mimarları, insanlar bu maddelerden başka neleri arzuluyor? Değişen zamana karşın, barınma ihtiyacımızın hala 2000 küsür yıl önceki atılan temellere oranla birebir aynı kalması beklenebilir mi?
Bu yazıda işte bu sorunun cevabını sorgulayan bir beyin fırtınası yapmaya çalışacağız. Değişen ihtiyaçlar, değişen nesil karşısında mimarinin durumu ve ondan beklenenler neler, bir düşünelim.
Şüphesiz ki insan içinde bulunduğu zamandan ve mekândan bağımsız olarak düşünülemez. Zamanın getirecekleri tahmin edilemeyeceğinden ötürü bireyin her ihtiyacını önceden kestirmesi de mümkün değildir. Örnek vermek gerekirse, mesela birey evlendi, hadi diyelim biraz ileri görüşlü davranarak, ardından üç odalı bir eve çıktı. Ancak ardından bir çocuk dünyaya geldi ve bir oda ona rezerve edildi. Aradan geçen birkaç senede evde hem hanımın hem de eşinin ayrı ayrı çalışabilmeleri için birkaç bağımsız alan ihtiyacı daha hâsıl oldu. Bununla da bitmedi ve geçen yıllarda evin üyeleri artmaya devam etti; tabii sınırları çizilmiş, ayrı bir yaşam alanı gerekliliği ile paralel bir şekilde. Bu verilen senaryo, göz önünde canlandırılması en kolay örneklerdendir. Bu, hemen hemen her çevrede gözlemleyebileceğimiz türden, yaygın bir durumdur.
Görsel 3: Üç odalı ev planı.
(Kaynak: https://tr.pinterest.com/pin/604115737497499237/?lp=true)
Elbette tüm bu olacakları önceden kestirebilmek çok güç olduğundan, doğal olarak, evi değiştirmekten başka bir çare bulunamayacaktır. İşte mimari planlama burada başarısız olmuş sayılır.
Verilen örneği çeşitli yapı grupları (tiyatro binaları, kapalı pazar alanları, oteller, iş merkezleri vs.) için de kurgulamak mümkündür. Mesela, sadece oyun sergileme amacı ile inşa edilmiş ve başka hiçbir eyleme olanak sunmayan bir yapı bloğu düşünün. Kullanılan hacim artık yetmediğinde ya da o bölge entelektüel kimliğini önemli ölçüde kaybettiğinde, artık o yapı iki seçenekle karşı karşıyadır. İlk olarak, mümkünse başka bir kimliğe bürünmesi beklenir. Bu adaptasyona elverişli ve zamana karşı dirençli olan başarılı örneğin belirtecidir. İkincisi ise, terk edilip öylece ortada bırakılmasıdır. Üstünden biraz zaman geçtiğinde büyük ihtimalle kapladığı alanın ziyan edildiği düşüncesiyle o yörenin güncel ihtiyaçlarını karşılayan yeni bir kütlenin inşa edilebilmesi için yıkılacaktır.
Zaman ve ona bağlı olarak insani ihtiyaçlar, hatta çevresel faktörler değiştikçe mimarinin de bununla adapte olacak bir şekilde evrilmesi gerekir. Günümüzdeki başarılı mimari örneklerin aranan niteliklerinden biri de budur. Çünkü ne elden çıkarıp duracak kadar çok yapı üretme şansımız ve materyalimiz var ne de zamanın şartlarına uyum sağlayamadığından ötürü bir kenarda çürümeye terk edilen yapıları hayata kazandıracak kadar enerjimiz ve yetkinliğimiz.
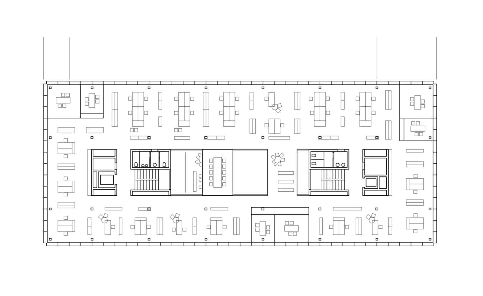
Esnek tasarım bu hususta önemlidir. Daha tasarım aşamasında mimarın, yapının tüm ömrünü hatta atanan fonksiyonu yitirdikten sonraki durumunu dahi değerlendirmesi elzemdir. Değişime açık, uyarlanabilme yetisine sahip, modüler, açık planlı ve geniş mekan imkanı sunan tipolojiler zamana karşı dirayetli olmasından ötürü sürdürülebilirdir.
Görsel 4: Açık Ofis Plan Şeması.
(Kaynak: https://www.archdaily.com/545580/office-building-200-nissen-and-wentzlaff-architekten/540a90ecc07a808f0a0000a0-office-building-200-nissen-and-wentzlaff-architekten-floor-plan)
Ne kadar dayanıklı, sanat eseri niteliğinde veya istenen fonksiyona uygun yapılar üretirsek üretelim, eğer kullanım ömrü sona ererse o uzun ömrün yapıya bir faydası olmaz. Faydalanamadıktan sonra sadece yer işgal eden bir yapı, anıtsal bir değerden başka ne anlam taşır ki? Enerjinin ve malzemenin hayati öneme kavuştuğu günümüzde az materyal ve enerjiyle çok şey başarmak durumundayız. Kaynak yetersizliğinden nasibini mimarlık da almıştır. Üstelik çevreye olan olumsuz etkisinden ötürü en sorunlu sektör, inşaat sektörü olarak görülmektedir. (Bina ve inşaat sektörünün, dünya çapında çevreye yayılan karbon salınımının %40’ından sorumlu olduğu belirtilmiştir. )
Tüm bu nedenlerden ötürü mimariye daha sürdürülebilir bir çerçeveden bakma zamanı çoktan gelmiştir. Çevre ekosisteminden bağımsız ne bir yaşam alanı ne de bir topluluk düşünülebilir. Yap-yık yöntemiyle çok daha fazla enerji ve malzeme israfına yol açmaktayız. Esnek plan kurgusuna sahip mimari (open building plan) ile çok fonksiyonlu amaçla kullanılabilen, hafif ve bölücü elemanlarla gerektiğinde birbirinden ayrılabilen alanlar üretmek, güncel ihtiyaçların karşılanmasında büyük avantajlar sunmaktadır. Yine var olan yapı bloğunun tümünün işlevini tamamıyla değiştirmek (adaptive reuse), kullanılan yapı elemanlarından taşıyıcı olanların asgari miktarda olmasıyla ve bölücü duvarların uyarlanabilir, kaldırılabilir, yerlerinin değiştirilebilir olmasıyla mümkün kılınabilir. Detaylıca tasarlanmış bir üründen ziyade, tamamlanması kullanıcıya bırakılmış (incomplete building), temelinde iskeletten oluşan bir yapı tasarımı (half product) da sunulması muhtemel mimari tasarım fikirlerindendir.
Şüphe yok ki zaman ilerledikçe değişime ayak uydurabilenler daha çok tercih edilenler arasında yerlerini alacaktır. Değişmeyen tek şeyin değişim olduğu çağımızda, adapte edilebilen, sürdürülebilir ve zamana karşı dirençli gibi kavramlar çağdaş mimarlığın kaçınılmaz ilkelerinden birkaçı olacak gibi görünüyor.
Yararlanılan Kaynaklar:
1. Till, J., Schneider, T. (2005). Flexible housing: the means to the end. Theory, 287-296.
2. Langston, C. (2014). Measuring good architecture: long life, loose fit, low energy. European Journal of Sustainable Development, 163-174.
3. Hatipoğlu, H.K., Ismail, S.H. (2019). Flexibility: from tent to modern houses in Turkey evaluation and guidelines. IOP conference series: materials science and engineering, (s. 1-7). Ankara.
Sanal Şantiye sitesinden daha fazla şey keşfedin
Subscribe to get the latest posts sent to your email.





