• Hakkımızda
  • Yazarlar
  • Reklam
  • Mobil Uygulamalarımız
  • Şikayet/İletişim
  • Giriş
  • Kaydol
Sanal Şantiye
  • Güncel
    • Haberler
    • Etkinlik
    • Teknoloji
    • Konu Dışı
  • Kütüphane
    • İnşaat Mühendisliği
      • Yapı
      • Mekanik
      • Geoteknik
      • Hidrolik
      • Ulaştırma
      • Yapı Malzemeleri
      • Diğer Notlar
      • Deneyler
    • Kanun & Yönetmelikler
    • İnşaat Programları
    • Yerbilimleri
    • Kitaplar
    • İş Güvenliği
    • Makaleler
    • Deprem
    • Şantiye
    • Sözlük
    • Staj
    • Kişisel Gelişim
  • Video
  • Blog
  • Test
  • Soru Cevap
  • TBDY 2018
  • Mimari
  • Fiyatlar
    • 2025 Yılı Yapı Yaklaşık Birim Maliyetleri
    • Güncel Demir Fiyatları
    • Güncel Hazır Beton Fiyatları
    • Çimento Fiyatları
    • Gazbeton Fiyatları
    • 2024 Birim Fiyatları | Tüm Bakanlıklar
Sonuç Bulunamadı
Tüm Sonuçları Görüntüle
  • Güncel
    • Haberler
    • Etkinlik
    • Teknoloji
    • Konu Dışı
  • Kütüphane
    • İnşaat Mühendisliği
      • Yapı
      • Mekanik
      • Geoteknik
      • Hidrolik
      • Ulaştırma
      • Yapı Malzemeleri
      • Diğer Notlar
      • Deneyler
    • Kanun & Yönetmelikler
    • İnşaat Programları
    • Yerbilimleri
    • Kitaplar
    • İş Güvenliği
    • Makaleler
    • Deprem
    • Şantiye
    • Sözlük
    • Staj
    • Kişisel Gelişim
  • Video
  • Blog
  • Test
  • Soru Cevap
  • TBDY 2018
  • Mimari
  • Fiyatlar
    • 2025 Yılı Yapı Yaklaşık Birim Maliyetleri
    • Güncel Demir Fiyatları
    • Güncel Hazır Beton Fiyatları
    • Çimento Fiyatları
    • Gazbeton Fiyatları
    • 2024 Birim Fiyatları | Tüm Bakanlıklar
Sonuç Bulunamadı
Tüm Sonuçları Görüntüle
Sanal Şantiye
Anasayfa Kütüphane İnşaat Mühendisliği Yapı

Zayıflatılmış Kiriş Enkesitli Birleşimler ( Reduced Beam Section)

İnş. Müh. Ece Kayakcı - İnş. Müh. Ece Kayakcı
21 Temmuz 2021 - Güncelleme 27 Ağustos 2022
Kategori: Yapı
0

Zayıflatılmış Kiriş Enkesitli Birleşimler 

Bu yazımda, 1994 yılında meydana gelen Northridge depremine kadar, moment aktaran çerçeveli çelik yapılarda yaygın olarak kullanılan kaynaklı kiriş kolon birleşimlerinin, deprem esnasında göstermeleri beklenen davranışı göstermemeleri ve tasarım aşamasında öngörülen davranış düzeyine ulaşamadan göçme sınır durumuna ulaştıkları için bu sorunu çözmek amacıyla ortaya atılan tekniklerden biri olan zayıflatılmış kiriş kesiti (Reduced Beam Section) çözümünden bahsedeceğim.

1994 yılında meydana gelen depremden sonra oluşan hasarın nedenlerini ve olası çözüm önerilerini ortaya çıkarabilmek amacıyla yapılan araştırmalarda hasarın nedenleri olarak, çelik elemanların varsayılan aksine izotropik olmaması, döşeme etkisi, birleşim detaylarının öngörülenin çok üzerinde bir gerilmeye maruz kalması, gevrek davranış göstermek suretiyle kiriş- kolon birleşiminin sünek davranışla enerji sönümlemesine engel olan birleşim detayları ortaya koyulmuştur.

Northridge Depremi
Northridge Depremi

Çelik yapıların sünek davranışı, çelik malzemesinin süneklik özelliğiyle tek başına sağlanamaz. Bunun için, tasarımda dikkate alınan rijit çerçeve ve ters düşmeyecek şekilde rijit davranış, çerçeveleri oluşturan yapı elemanlarının birleşimlerinde olması istenen plastikleşmelerin gerçekleşmesini sağlayacak yeterli dayanım ve birleşim bölgeleri öncelikli olmak üzere tekrarlı yükler varlığında elastik olmayan deformasyonların oluşmasına engel olmayacak bir detaylandırma gerekmektedir.

Bu sayede, kirişler, kolonlar ve kiriş kolon birleşimlerindeki panel bölgeleri plastik dönme kapasitelerini kullanarak depremin yapıya aktarmış olduğu enerjiyi sönümlemeye çalışırlar. Bahsedilen sünek davranış gerçekleşebilmesi, ana taşıyıcı yapının tüm bölgelerinde yeterli miktarda sünek davranış varlığında mümkündür.  Bu noktadan bakıldığında kolon ve kirişlerin birleşim araçları olarak kullanılan kaynak ve bulonların rijitlik davranışları dikkat edilmesi gereken bir durumdur. Bu birleşim araçları, kolon ve kirişlerde oluşabilecek maksimum kuvvetleri aktarabilecek nitelikte olmalılardır.

Süneklik Nedir?

Süneklik, sistemin ya da bir elemanın taşıma kapasitesini kaybetmeden, esneyebilme ve şekil değiştirebilme özelliğidir.  Süneklik ne kadar büyükse malzemenin deprem enerjisini tüketme kapasitesi de o denli büyüktür. Süneklik, sistemi elastik sınırın ötesinde zorlayan etkiler altında, enerji tüketimini ve taşıyıcı elemanların karşılıklı etkileşerek yardımlaşmasını sağlamak için, düşey yükler altındaki davranıştan daha çok dinamik deprem etkilerin karşılanmasında önem kazanır.

Zayıflatılmış Kiriş Enkesitli Birleşimler ( Reduced Beam Section)
Süneklik

Rijitlik Nedir?

Bir malzemenin bir yük altında bükülmeye, gerilmeye, veya deformasyona dayanmasına izin veren göreceli sertliktir. Bu, malzemenin Elastisite modülünün ve şeklinin bir fonksiyonudur. Hiçbir etkiye maruz kalmayan, sürtünmesiz ortamda da kuvvet ya da moment etkisi altında şekil değiştirmeyen cisimlere rijit cisim adı verilir. Rijitlik arttıkça şekil değiştirme olabilmesi için gereken etki kuvveti de artmaktadır.

Bunlara da Göz Atmayı Unutmayın

7 Adımda Öngermeli Prefabrik Üretimde Öngerme Kontrolü

7 Adımda Öngermeli Prefabrik Üretimde Öngerme Kontrolü

9 Aralık 2025
TAKS Nedir? TAKS Hesabı Nasıl Yapılır?

TAKS Nedir? TAKS Hesabı Nasıl Yapılır?

24 Ekim 2025
Kesme / Kayma ve Eğilme Momenti Etkin Perdeler

Kesme / Kayma ve Eğilme Momenti Etkin Perdeler

11 Nisan 2025
Radye Temel Nedir? Nasıl Uygulanır?

Radye Temel Nedir? Nasıl Uygulanır?

19 Şubat 2025
Kaba İnşaat Nedir? Maliyeti Nasıl Hesaplanır?

Kaba İnşaat Nedir? Maliyeti Nasıl Hesaplanır?

12 Şubat 2025
APPLE PARK: Sürdürülebilir Mimarinin Merkez Üssü

APPLE PARK: Sürdürülebilir Mimarinin Merkez Üssü

11 Aralık 2024 - Güncelleme 23 Aralık 2024
Zayıflatılmış Kiriş Enkesitli Birleşimler ( Reduced Beam Section)
Rijitlik

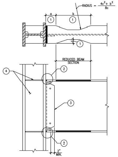
ZAYIFLATILMIŞ KİRİŞ ENKESİTİ

Depremden sonra “kapasiteye göre tasarım” kavramına göre kiriş- kolon birleşimlerinde meydana gelen elastik olmayan şekil değiştirme durumunun belirli bir bölgeye aktarması amaçlanır. Bu prensibe uygun olarak, “zayıflatılmış kiriş enkesiti” ( Reduce Beam Section) kavramı ortaya atılmıştır. Bu birleşim tipinde amaçlanan kolonlardan belli bir uzaklıkta, kirişin hem alt hem de üst başlığında yapılacak azaltmalar yardımıyla elastik olmayan şekil değiştirmeler zayıflatılmış bölgeye yönlendirilerek kontrol altına alınabilmektedir.

Zayıflatılmış kiriş enkesitine ait 3 tipik kesim seçeneği mevcuttur. Sabit kesim, ortaya atılan ilk zayıflatma biçimidir. Kolon yüzeyine yaklaştıkça artacak olan momenti karşılayabilmek için Lineer değişken enkesitini ortaya çıkarmışlardır. Yapılan testlerin çoğunda, bu iki kiriş tipi de iyi sonuçlar vermiş ve büyük süneklik oranlarına ulaşabilmişlerdir. Ancak ortaya çıkan esas problem, kiriş başlıklarındaki kesimlerin ani değiştiği noktalarda gözlenen çatlak ve kırılmalar olmuştur.

Bunun tek nedeninin yapılan kesimler sonucu başlıklarda kalan ufak çentiklerin, gerilme yığılmaları sonucu çatlaklara dönüşmesi olduğu belirtilmiştir. Söz konusu sakıncayı ortadan kaldıran dairesel zayıflatılmış kiriş enkesiti yürütülen bilimsel çalışmalarda en çok kullanılan ve bunun sonucunda yönetmeliklerce kullanılması önerilen tek zayıflatılmış kiriş enkesiti olarak öne çıkmıştır. Bu çözüm ile, akma ve plastik mafsal oluşumunun zayıflatılmış kesitte yayılı biçimde ortaya çıkması sağlanmış, kolon yüzünde meydana gelecek şekil değiştirmeler ve bunun sonucunda ortaya çıkacak büyük momentler sınırlanmıştır.

Zayıflatılmış Kiriş Enkesitli Birleşimler ( Reduced Beam Section)

Kiriş başlığının kolonla birleştiği bölgede oluşacak etkilerin azaltılması, kirişi kolona bağlayan kaynaklarda ve kaynağın çevresinde oluşacak istenmeyen zorlamaların ve dolayısıyla olası kırılmaların önlenebilmesini sağlamaktadır. Kolon yüzünde ortaya çıkacak moment değerinin kontrol altında tutulabilmesi, deprem yönetmeliklerinin en önemli koşullarından biri olan güçlü kolon- zayıf kiriş ilkesinin sağlanabilmesine de yardım eder.

“Zayıflatılmış kiriş kesitinde” takviyeye benzer bağlantı kirişten daha güçlüdür. Bu durum, bağlantının mukavemetini arttırarak değil; kirişin mukavemetini azaltarak sağlanır. Süneklikte büyük bir artış sağlar, yanal mukavemette küçük bir artışa sebep olur. Süneklik artışı depreme dayanımın artmasında önemli bir etkendir.

Zayıflatılmış Kiriş Enkesitli Birleşimler ( Reduced Beam Section)

KİRİŞTEKİ ZAYIFLATMANIN DAVRANIŞA ETKİSİ

Kirişteki azaltmanın davranışı nasıl etkileyeceği üzerine araştırmalar yapılmıştır. Bu araştırmalar sonucunda; kiriş enkesitinde yapılan azaltmanın eksenel rijitliğe neredeyse hiçbir etkisi olmadığı, kirişin kuvvetli eksen etrafındaki eğilme rijitliğinde yaklaşık olarak %10 azaltıcı etkisi olduğu ancak bu etkinin kiriş açıklığı arttıkça etkisini kaybettiği, zayıf eksen etrafındaki davranışa bakıldığında ise kiriş başlıklarının katkısı önemli ölçüde azaltıldığından, %40’lara varan rijitlik azalması meydana geldiği ortaya koyulmuştur. Açıklık arttıkça rijitlik kaybının azalması, geniş açıklıklarda da bu tekniğin kullanılabileceği sonucunu ortaya çıkarmaktadır. Ancak bu noktada dikkat edilmesi gereken husus, artan açıklıklarda kolon- kiriş birleşiminde meydana gelecek moment artışı olacaktır.

Yanlış uygulamadan ve eksik bilgilerden kaynaklanan bir hasarın, çözüm önerisi aramaya yönlendirmesi sonucuyla ortaya çıkan yapısal çelik çerçeve sistemi tasarımının gelecekteki uygulamaları için umut verici, etkili bir yöntemin ortaya çıktığını söyleyebiliriz.

Bir sonraki yazımda buluşmak dileğiyle…

 

Kaynakça

ZAYIFLATILMIŞ KİRİŞ ENKESİTLİ KİRİŞ – KOLON BİRLEŞİMLERİ, Övünç TEZER


Sanal Şantiye sitesinden daha fazla şey keşfedin

Subscribe to get the latest posts sent to your email.

Etiketler: çelikçelik binalarçelik kirişdepremmühendislik
Paylaş17Tweet11Gönder
İnş. Müh. Ece Kayakcı

İnş. Müh. Ece Kayakcı

Muğla Sıtkı Koçman Üniversitesi Yapı Malzemeleri Anabilim Dalı Yüksek Lisans

Bir yanıt yazın Yanıtı iptal et

E-posta adresiniz yayınlanmayacak. Gerekli alanlar * ile işaretlenmişlerdir


Son Yorumlar

  • Ekonomik Betonarme Perde Tasarımı Nasıl Olur? için İnş.Müh.Ahmet Çelikkollu
  • Ekonomik Betonarme Perde Tasarımı Nasıl Olur? için İnş.Müh.Mustafa AKSU
  • 40 Yeni Meslekte MYK Belgesi Zorunlu Oldu: İnşaat Sektörü İçin Kritik Düzenleme için Cagdas Bezgin
  • Nanoteknoloji ve İnşaat Mühendisliğindeki Uygulama Alanları için Mkamil akcit
  • İletişim Nedir? İletişimin Engelleri Nelerdir? için 66
REKLAM

Sorular

  • İnşaat mühendisi güncel maaşlar
  • Sta4cad döşeme ayarlama
  • Dilatasyon boşluğu çatlakları
  • hangi poz arama aracını tercih ediyorsunuz?
  • taşıma gücü hesabı
Sanal Şantiye ®

Abone ol

Sanal Şantiyeye abone olmak ve e-posta ile bildirimler almak için e-posta adresinizi girin.

Diğer 251 bin aboneye katılın

Yasal Uyarı

Fikir ve Sanat Eserleri Kanunu Madde Ek-4 “…hak sahiplerinin başvuruları üzerine ihlâle konu eserler içerikten çıkarılır. Bunun için hakları haleldar olan gerçek veya tüzel kişi öncelikle bilgi içerik sağlayıcısına başvurarak üç gün içinde ihlâlin durdurulmasını ister.” hükmü uyarınca telif hakkı ihlali olduğunu düşündüğünüz yazı/resim/video vb. içerikleri bize bildirmeniz durumunda 3 gün içinde gerekli işlem yapılarak ilgili içerik kaldırılacaktır.

  • Hakkımızda
  • Yazarlar
  • Yazarlık
  • Kullanım Koşulları
  • Gizlilik Politikası
  • Reklam
  • Şikayet/İletişim
  • Site Haritası

© 2009 - ∞ Sanal Şantiye

Hoşgeldin!

Hesabınıza giriş yapın

Şifremi Unuttum Kaydol

Yeni Hesap Oluştur

Kayıt olmak için formu doldurun

Tüm alanlar zorunludur Giriş

Şifrenizi geri alın

Şifrenizi yenilemek için e-posta adresinizi veya kullanıcı adınızı girin

Giriş
Sonuç Bulunamadı
Tüm Sonuçları Görüntüle
  • Güncel
    • Haberler
    • Etkinlik
    • Konu Dışı
    • Teknoloji
    • Sponsorlu İçerik
  • Kütüphane
    • İnşaat Mühendisliği
      • Yapı
      • Yapı Malzemeleri
      • Ulaştırma
      • Mekanik
      • Hidrolik
      • Geoteknik
      • Yapı İşletmesi
      • Diğer Notlar
      • Deneyler
    • Deprem
    • İnşaat Programları
    • Kişisel Gelişim
    • Kitaplar
    • Staj
    • Makaleler
    • Şantiye
  • Kanun & Yönetmelikler
  • Güncel Malzeme Fiyatları
    • Güncel Demir Fiyatları
    • Hazır Beton Fiyatları İllere Göre
    • Çimento Fiyatları
    • Güncel Gazbeton Fiyatları
    • 2024 Birim Fiyatlar (Tüm Bakanlıklar)
    • 2025 Yılı Yapı Yaklaşık Birim Maliyetleri
  • Testler
  • Video
  • Soru Cevap
  • Yazarlar
  • Ekibe Katıl
  • Hakkımızda
  • Şikayet/İletişim
  • Giriş
  • Kaydol

© 2009 - ∞ Sanal Şantiye

Bu web sitesi çerezleri kullanır. Bu web sitesini kullanmaya devam ederek, çerezlerin kullanılmasına izin vermiş olursunuz. Gizlilik politikamızı inceleyin.