Teknik Çizim Nedir?
Teknik çizim, projelere uygun eskiz kağıdına, T cetveli ve gönye yardımıyla yapılabiliyorken, günümüzde elle çizim yerine bilgisayarlı çizim (AutoCAD) tercih edilir. İster elle çizim ister bilgisayarlı çizim yapın, uymanız gereken teknik kurallar vardır. Teknik çizimlerde projeleri daha anlaşılır kılmak için kullanılan işaret ve semboller vardır. İşaret ve semboller projenin ne amaçla kullanılacağı, nasıl inşa edileceği hakkında bize bilgiler verilir. Çizilen paftanın ölçeğine uygun işaret ve semboller kullanılmalıdır.
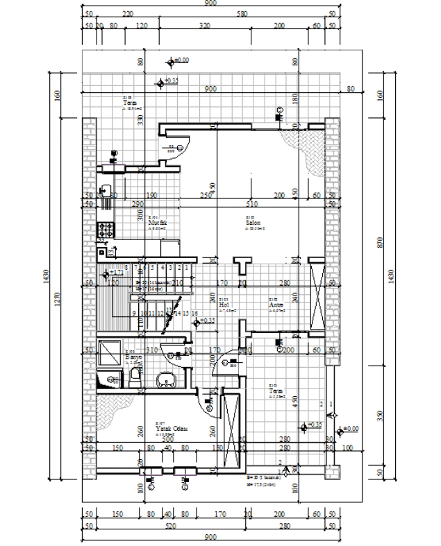
Duvar Ve Bacalar
Duvarlar mahalleri oluşturan yapı elemanlarıdır. Duvarlar, mahalleri dış ortamdan ayırır. Dış duvarlar 20 cm, iç duvarlar 10 cm olarak çizilir. Konutlarda en küçük baca ölçüsü 15*15 cm’dir. Ateş bacaları daire, kare veya dikdörtgen yapılır.
Kolon Ve Perdeler
Binanın taşıyıcı elemanı kolonlardır. Kolonun 1/6 oranında düzenlenmesine perde denir.
Kapı Ve Pencereler
Bir kapı kasa ve kanat olmak üzere iki kısımdan oluşur. Kapı genişliği ve yüksekliği kullanım amacına göre değişir. Pencere de kasa ve kanat olmak üzere iki kısımdan oluşur. Kapı ve pencereler projelere göre farklılık gösterirler, fakat kapı standart olarak 210/90 (kasa hariç), pencere ise 150/130 olarak çizilir.
Mimari Proje Çizimi
- Yapının kaplayacağı alan(aks) çizilir.
- Düşey yöndeki duvarlar ölçüsünde çizilir.
- Yatay yöndeki duvarlar düşey yöndeki duvarlarla kesişecek şekilde çizilir.
- Kolonlar yerleştirilir.
- Odalar belli olduktan sonra kapı ve pencere boşlukları bırakılır.
- Sıva çizimi yapılır.
- Projeye uygun merdiven çizimi yapılır.
- İç ölçülendirme yapılır.
- Dış ölçülendirme, kotlu ölçülendirme.
- Mahal bilgileri yazılır.
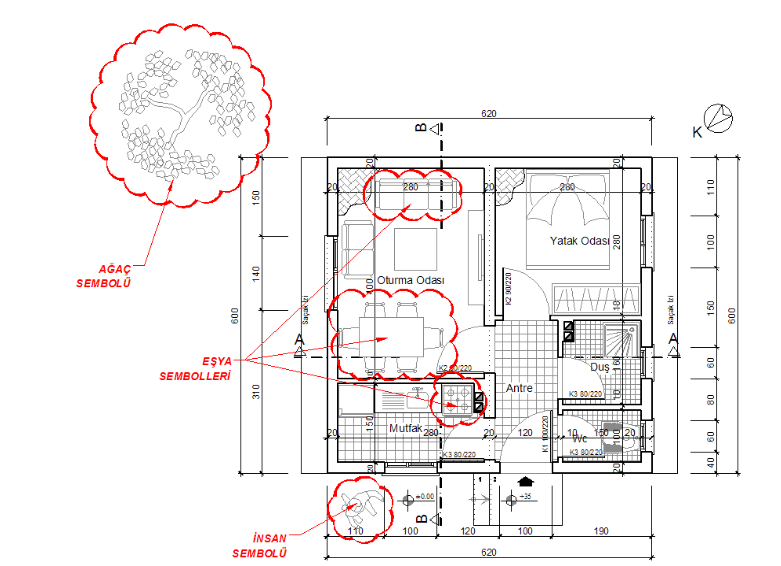
- Bina tefriş işi yapılır.
- Tarama; farklı yapı malzemelerinin ve döşeme kaplamlarının ifadesini sağlar.
- Tretuvar çizilir, genellikle 20 cm.

Elle çizim yapacaksınız eskiz kağıtlarına, t cetveli, gönye ve 4 çeşit kaleme ihtiyacınız olacaktır. Kalemler kalınlık sırasına göre 1.0, 0.5, 0.7, 0.35 uçlu kalemler olmalıdır. Size tavsiyem, çiziminizi en ince uçlu (0.35) kalemle tamamlandıktan sonra kalınlık vermenizdir, elle çizim yapıyorsanız hata düzeltirken tüm çizimden olabilirsiniz. Dört ayrı kalem kullanmamızın sebebi, bazı yapı elemanlarının gözümüze çarpması gerekmektedir. Örneğin, kolon ve duvarlar en kalın olması gereken yapı elemanlarıdır. Mahal bilgileri, merdiven, kapı ve pencereler 0.5-0.7 uçlu kalemle çizilebilir ama sıva çizimi 0.35 uçlu kalemle yapmalısınız. Bilgisayarlı çizimde de bu kalınlıkla dikkate etmeniz önemlidir.
Kaynaklar / References
-
Mesleki Eğitim ve Öğretim Sisteminin Güçlendirilmesi Modülleri
Sanal Şantiye sitesinden daha fazla şey keşfedin
Subscribe to get the latest posts sent to your email.




